×

Harrogate 47

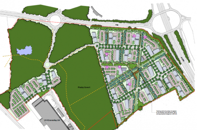
Optima provided comprehensive transport planning advice associated with a sustainable business park adjacent to Junction 47 of the A1 (M) in Flaxby, known as Harrogate 47.

The development consists of 580,000 sqft of B1a Offices, B1b Research & Development and B1c Light Industrial uses and up to 30,000 sqft of ancillary retail and leisure uses.

Optima were appointed to produce a Transport Assessment and Travel Plan to support the outline application, which was granted planning approval in 2017. Optima were also retained to provide Transport and Travel Planning services associated with the first phase of development for an Eco Lodge Office Complex, approved in 2019.



Projects Flaxby
Optima is a dynamic, forward thinking consultancy providing all of your requirements in the field of highways/transportation engineering and development planning
Find Out more